石家庄冠宇汽车租赁与服务有限公司

ELEVATOR DOOR SYSTEM电梯门系统

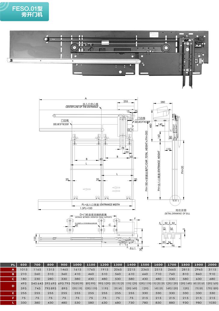
FESO.01型旁开门机